Modernisierung Konsum Leipzig Filiale Bautzmannstraße
Theaterwerkstätten der Oper Leipzig
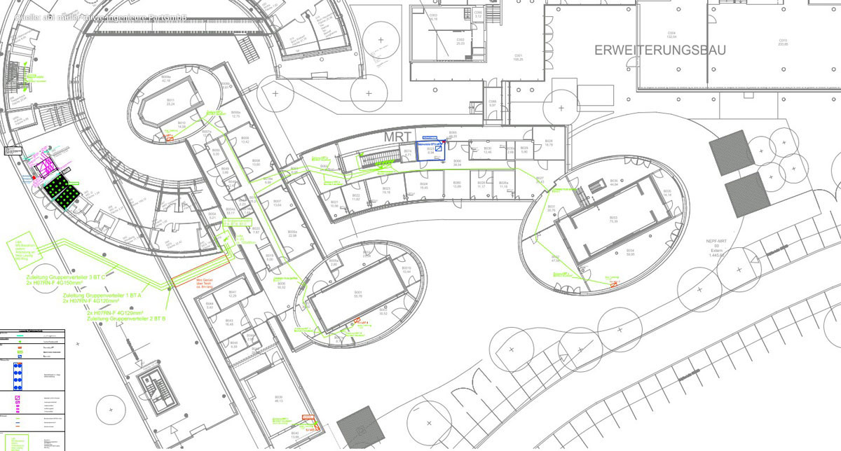
Austausch MRT 3T MRT in der UKL
Umbau Hausmeisterwohnung zu Büroflächen im GH
Errichtung PV-Anlage MPI NEPF Leipzig
Campus Lorenzo Berufsschule Leipzig
Hotel IBIS Bayreuth
The Post Leipzig
Medientechnische Erweiterung Seminarraum, Austausch Beleuchtung
Sporthalle Frankleben
Umbau Mittelspannungs- und Niederspannungsschaltanlage MPI NEPF Leipzig
Erweiterung Lessing-Oberschule Schkeuditz
Bundesarchiv Außenstelle Leipzig
Campus Lorenzo Wohnen Leipzig
Wohnanlage Schopenhauerstraße Halle (Saale)
Austausch MRT 7T MPI NEPF Leipzig
Austausch Sicherheitsbeleuchtungsanlage Primatenhaus Zoo Leipzig
MPI EVAN Aufstellung Bürocontainer und Sanierung der Außenbeleuchtung
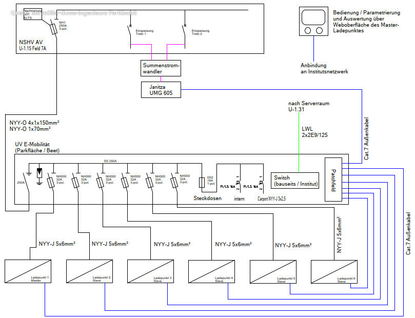
MPI EVAN Errichtung von Ladepunkten
Eigentumswohnungen Jacobstraße Halle (Saale)
Erneuerung LWL-/TK-Primärnetz Bundespolizeiabteilung Bad Düben
Errichtung Serveranlage mit einer Leistung von 168 kW
Deutsche Rentenversicherung Mitteldeutschland
MPI EVAN Neuberufung Tung
Pflegeheim Nexö Leipzig
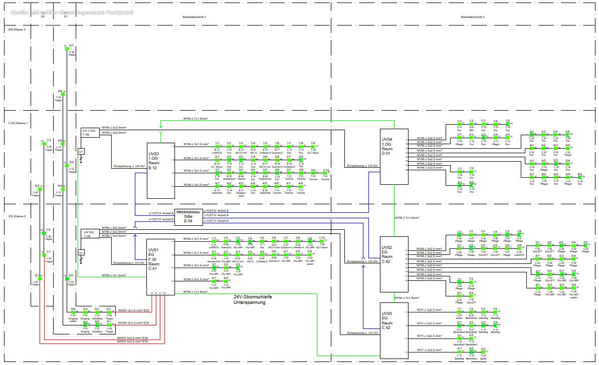
Uniklinik Leipzig Operatives Zentrum
Beschreibung